DIE Alternative zur Eigentumswohnung - kleine DDH mit viel Nebengelass und Garten

Details

Objektnr. 674JU
Haus-Typ Einfamilienhaus
Kaufpreis 130.000 €
Wohnfläche 78.84 m²
Verfügbar ab sofort

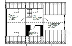
Objektbeschreibung

Die kleine Doppelhaushälfte aus 1848 bietet einen tollen Fleck Wohnraum für 1-2 Personen. Im Außenbereich gibt es ein Zimmer mit Heizung und separatem Eingang, was ein ideales Homeoffice sein könnte. Im Haus Haus erwartet ein ein geräumiger Flur, von welchem aus man in die Wohnräume gelangt. Die große Küche mit Einbauten und Geräten, das angrenzende Bad sowie Wohnzimmer und Schlafzimmer sind auf dieser Etage. Im Dachgeschoss befinden sich ein Zimmer, ein Abstellraum und weiterer Platz zum Ausbauen. Die Möglichkeiten sind hier vielfältig. Hinter einer Holztür befindet sich der Kellerabgang und durch einen weiteren Durchgangsraum gelangt man in den Garten. Für Hobby-Bastler finden sich nicht nur im Keller Ecken für Werkzeug und Werkbank, sondern auch im Außenbereich. Hier gibt es zahlreiche Unterstellmöglichkeiten für Fahrräder, Motorräder und andere Schätze.

Ausstattung

Die voll teilunterkellerte Doppelhaushälfte wurde fortlaufend modernisiert und instandgesetzt. Das Dach ist 2004 neu eingedeckt worden, die Gasheizung ist ebenfalls 2004 neu eingebaut worden, Bad und Küche sind auch in dem Zuge erneuert worden und punkten mit einer Fußbodenheizung. Es sind überwiegend neue Kunststofffenster zwischen 1997 und 2004 mit Isolierverglasung eingebaut worden, welche teilweise Rollläden erhalten haben. Die Innenraumgestaltung lässt sich mit wenigen Handgriffen, einem modernen Fußboden und neuen Tapeten auffrischen und in eine moderne Wohnatmosphäre verwandeln. Das Dachgeschoss ist noch komplett ausbaufähig und wartet auf Ihre Ideen. Auf dem Hof sind zahlreiche Schuppen, Garagen und Stallungen für viel Platz zum Tüfteln und Basteln.

Lage

"Das Dorf in der großen Stadt" - Magdeburg Ottersleben: Geprägt durch grüne Umgebung und Einfamilienhäuser zählt der Stadtteil zu den beliebtesten Lagen. Kurze Wege zum Bäcker, Fleischer und der Schule sind dafür ausschlaggebend, wie auch der sehr kurze Weg in die Natur. Die Anonymität der Großstadt ist hier nicht zu finden, sondern nette und aufgeschlossene Nachbarn. Für Einkaufsmöglichkeiten ist mit dem nahegelegenen Bördepark gesorgt. Hier findet man vom Elektronikfachmarkt (MediaMarkt) über Baumarkt auch alle weiteren Dinge für den täglichen Bedarf. Die Anbindung zum Magdeburger Ring und zur Autobahn A14 ist sehr gut.

Sonstiges

ACHTUNG - Das Objekt wird im Bieterverfahren angeboten - dies ist keine Auktion. Der angebotene Kaufpreis stellt den minimalen Preis dar und kann ggf. abweichen. Der Verkäufer ist frei in seiner Entscheidung, ob und welches Kaufangebot er annimmt. Wenn Sie diese Immobilie interessant finden, kommen Sie gern zum Schautag am 14.02.2026 zwischen 11-13 Uhr vorbei. Sie können das Objekt in Ruhe ansehen, damit Sie entscheiden können, was Ihnen dieses Haus Wert ist. Hierzu geben Sie nach der Besichtigung ein schriftliches Gebot innerhalb 7 Tagen ab. Zum genaueren Ablauf fordern Sie gern ein Exposé an, dann erhalten Sie alle Informationen. Ich freue mich auf Ihre Kontaktaufnahme!

Energiepass

AusweistypBedarfsausweis
Gültig bis2035-11-05
Endenergiebedarf161.45 kWh/(m²*a)
EnergieträgerERDGAS_SCHWER
EffizienzklasseF

Ansprechpartner

Frau Josefine Ullmann
Telefon:004915120121467
Mobil:004915120121467
E-Mail:

Jetzt anfragen